• 首页
  • 新闻
  • 机构
  • 信息
  • 互动
  • 办事
  • 行业
  • 专题
首页 > 行业管理 > 规划管理 > 批前公示

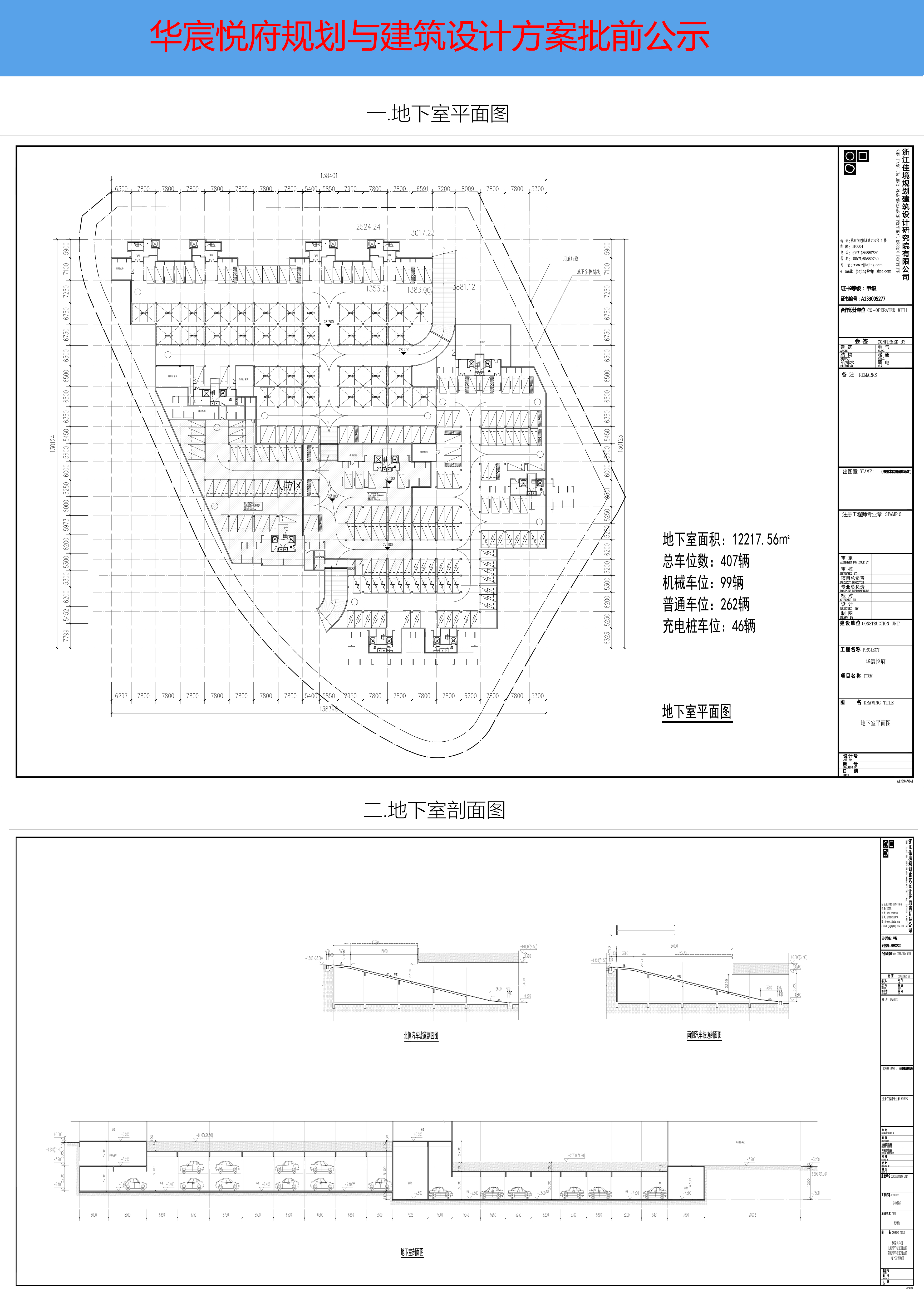
华宸悦府规划与建筑设计方案批前公示

来源:下陆区分局、建设项目规划科    时间:2022-01-24 09:01

华宸悦府规划与建筑设计方案批前公示1.jpg

华宸悦府规划与建筑设计方案批前公示2.jpg

华宸悦府规划与建筑设计方案批前公示3.jpg

华宸悦府规划与建筑设计方案批前公示4.jpg

华宸悦府规划与建筑设计方案批前公示5.jpg



主办单位:黄石市自然资源和城乡建设局  承办单位:黄石市自然资源和城乡建设局 办公电话:0714—6264818

鄂ICP备05026187号 鄂公网安备42020402000046 网站标识码:4202000036 网站地图